Skip to main content
header-left
File #: 2025-0321    Version: Name: Valvoline Instant Oil Change - 179th & Wolf Road - Development Petition for New Build-out
Type: MOTION Status: PASSED
File created: 4/11/2025 In control: Board of Trustees
On agenda: 12/15/2025 Final action: 12/15/2025
Title: Valvoline Instant Oil Change - 179th & Wolf Road - Development Petition for New Build-out
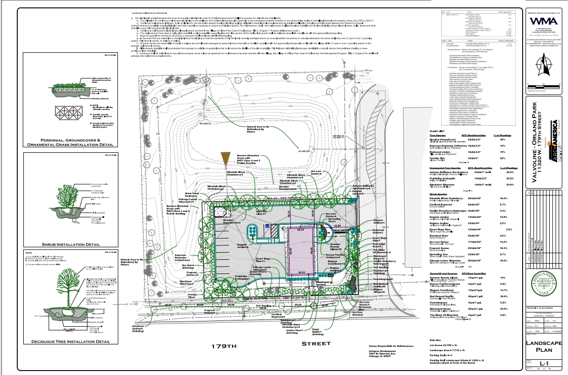
Attachments: 1. Staff Report to the Board - 11320 179th Street - SUP 2025-0321, 2. Revised Site Plan - 2025-1126, 3. Revised Landscape Plan, 4. Revised Elevations, 5. Dumpster Enclosure -Stone - Brick, 6. Special Use Responses Valvoline 062525, 7. Valvoline- 179th & Wolf, Orland Park- Variance Request Worksheet, 8. Revised - PC Staff Report - Valvoline Instant Oil Change - 11320 W. 179th Street - Final - 2025-11-18, 9. Ord granting a special use for Motor Vehicle Services with a Variance (Valvoline_ 179th and Wolf Road)(2075349.pdf
Title
Valvoline Instant Oil Change - 179th & Wolf Road - Development Petition for New Build-out

History
Project: Valvoline Instant Oil Change
Legistar ID: 2025-0321
Project ID: DP-25-00558
Petitioner/Representative: Dan Elliott, Integrus Development
Address: 11320 179th Street
P.I.N.s: 27-31-202-019-0000

REQUESTED ACTIONS
The Petitioner is requesting the approvals below to construct a full-service oil change facility located at 11320 179th Street.
· A Special Use Permit for Motor Vehicle Services, per LDC Section 6-207.C.12.
· A Variance to allow the omission of the maintenance access path for the site detention basin, per LDC Section 6-305.8.b.4.
· Site Plan
· Landscape Plan
· Building Elevations

PLAN COMMISSION DISCUSSION
Present at the Plan Commission were 6 commissioners, members of staff, members of the public, and the petitioners. Following the staff presentation, the commissioners discussed their support of the project and, outside of a few questions for clarification, did not have further items for discussion.

The Plan Commission reviewed the existing access drive between Aldi and the proposed Valvoline facility and found it to be adequate to serve both uses and provide shared internal circulation. The Commission also reviewed the petitioner’s access and detention maintenance agreements with Aldi and found them acceptable, concluding that the proposed use is appropriate for the site and will not adversely affect the quality of life of nearby residents. In addition, Commissioners complimented the overall site design, including the proposed landscaping plan.

Overall, the project was unanimously recommended for approval by the Plan Commission 6-0 with the Staff Recommended Action. This item is now before the Board for consideration.

PLAN COMMISSION RECOMMENDED MOTION
Regarding Case Number 2025-0321, also known as Valvoline Instant Oil Change, I move to approve the Staff Recommended Action as presented in the Staff Report to the Plan Commission for ...

Click here for full text